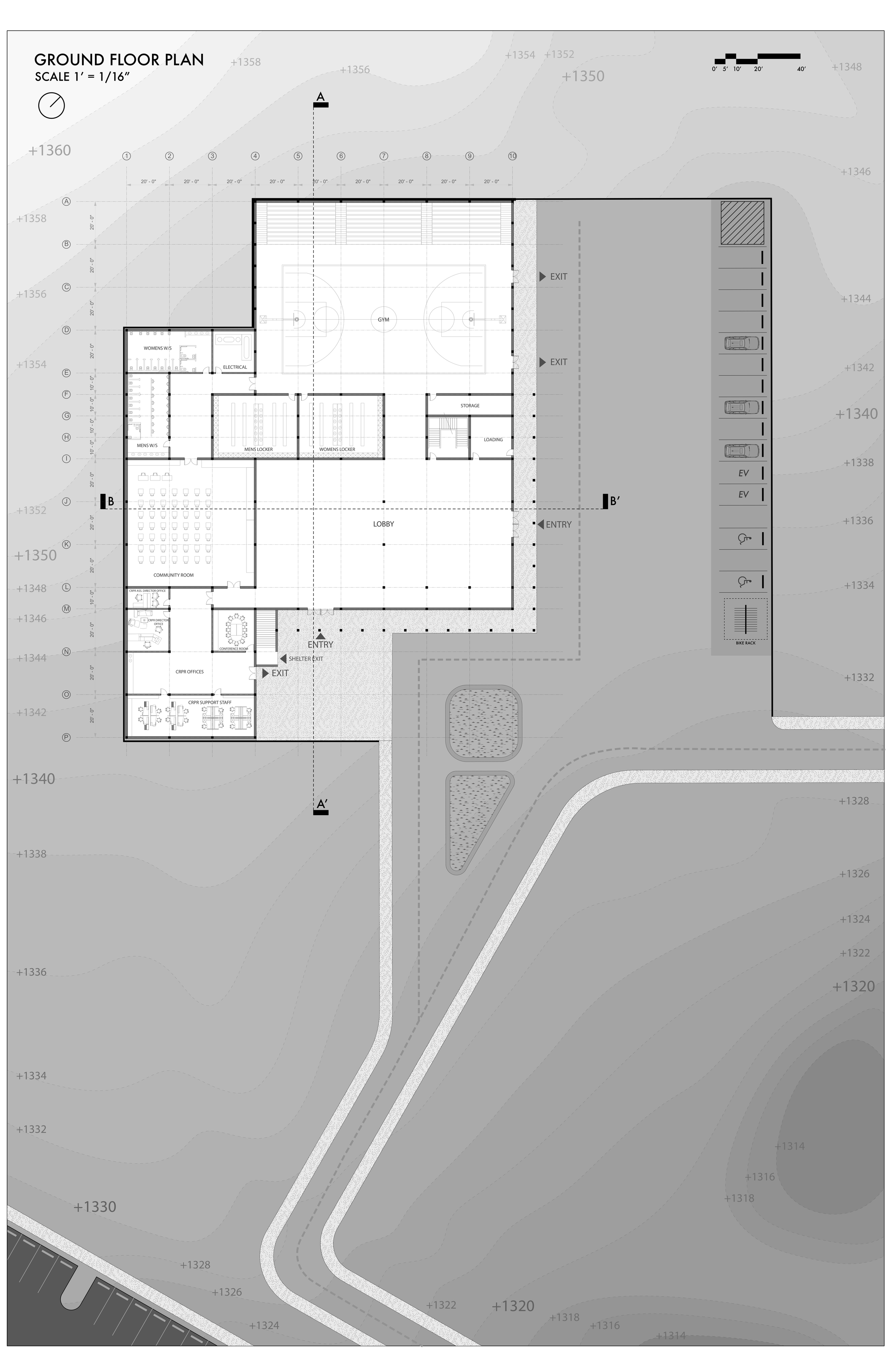
This project explores how a community space can emerge from the land itself.
Guided by the site’s terrain, the building is anchored through a sunken form that creates a calm, shared ground away from the noise of the outside world. A gently shifted nine-square grid organizes the spaces, forming courtyards, pauses, and moments of encounter that reflect the fluid nature of community life.
Designed around a six-foot human scale and oriented to capture southern light, the architecture is shaped by proportion, terrain, and shadow, becoming less an object and more a landform—an experience rooted in the earth and animated by light.

FALL 2025

MODEL PHOTOS

Previous
Previous

THE SCULPTED THRESHOLD